
Budova byla postavená na místě starého domu, zbořeného v roce 1890 v oblasti zvané Radlas a sloužila jako Městská tržnice s 52 prodejními boxy. Budova je navržena ve slohu historismu a jedná se kopii tržnice v Rijece v Chorvatsku.

Brněnským radním se zalíbily dvě stejné stavby tržnic v Rijece a požádali tamní radnici o plány, podle nichž pak nechali o deset let později, v letech 1890 až 1891 postavit naprosto věrnou kopii. Autorem původních plánů byl architekt Ing. Igor Vauchnig, vedoucí městské technické kanceláře v Rijece. V roce 1898 byla tržnice přestavena na tělocvičnu (tehdy německého Turnvereinu), ale následně v roce 1912 byla přestavena zpět na tržnici. V roce 1926 byla upravena na kinosál s 502 místy na sezení a ve 20.století zde bylo umístěno kino Radost. Při úpravách na kinosál byla zazděna původní velká okna na bocích budovy.


V 90. letech byl objekt přestavěn na sportoviště se squashovými kurty a bowlingovou hernou v suterénu. Při této příležitosti prošla celá stavba komplexní rekonstrukcí, která jí alespoň na čas vrátila její původní charakter.


Roku 2014 byl provoz Squash Radost ukončen a následně zde působil music hall Radost. Stavba je velmi hodnotnou ukázkou typické městské tržnice z konce 19.století, která kombinuje prvky moderního inženýrského stavitelství s tradičním historizujícím řešením fasád inspirovaným antikou a v detailu rokokem.

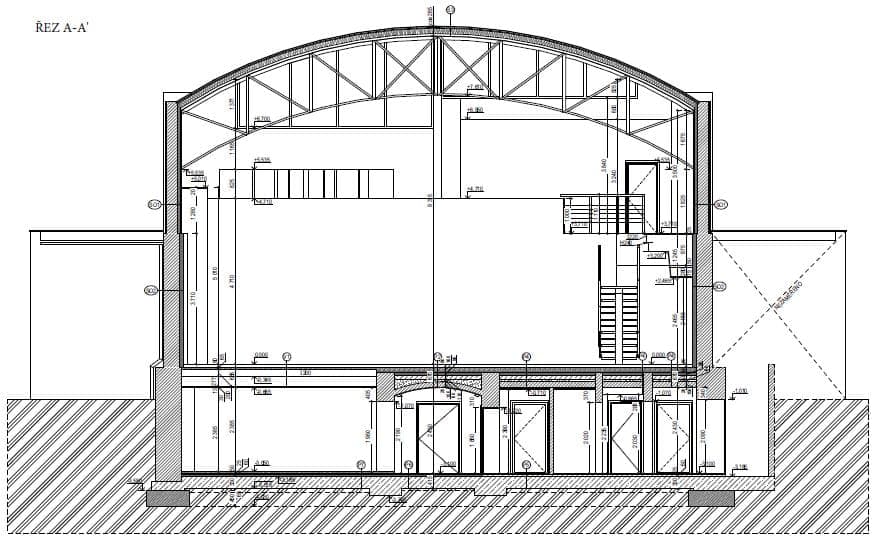
Zaměření bývalé tržnice
Předmětem pasportu byla historická památkově chráněná nemovitosti v širším centru Brna. Cílem bylo detailní zaměření budovy včetně lokalizace problematických míst, trhlin, stavu omítky a fotodokumentace objektu. Následovalo zpracování detailní dokumentace stávajícího stavu a vytvoření 3D modelu jako podklad pro nadcházející architektonickou studii.
Typ služby | Design due diligence, Pasportizace budov |
Realizace | Plancraft s.r.o., 2021-2022 |
Fáze projektu | Pasport stavby, 3D model |
Velikost | 1 509 m² |
Klient | Soukromý investor |
Tým | Ing. Daniel Ryšavý, Ing. arch. Kateřina Malečková |